Réhabilitation d'une maison de ville
Date : 2022
Lieu : Villeneuve-Les-Avignon, Gard, France
Surface : 100 m²
Budget : 120k Euros HT
Mission confiée : relevé du bâtiment, réalisation du projet et dépôt de déclaration préalable
Situation du projet : Permis de construire obtenu, chantier réalisé
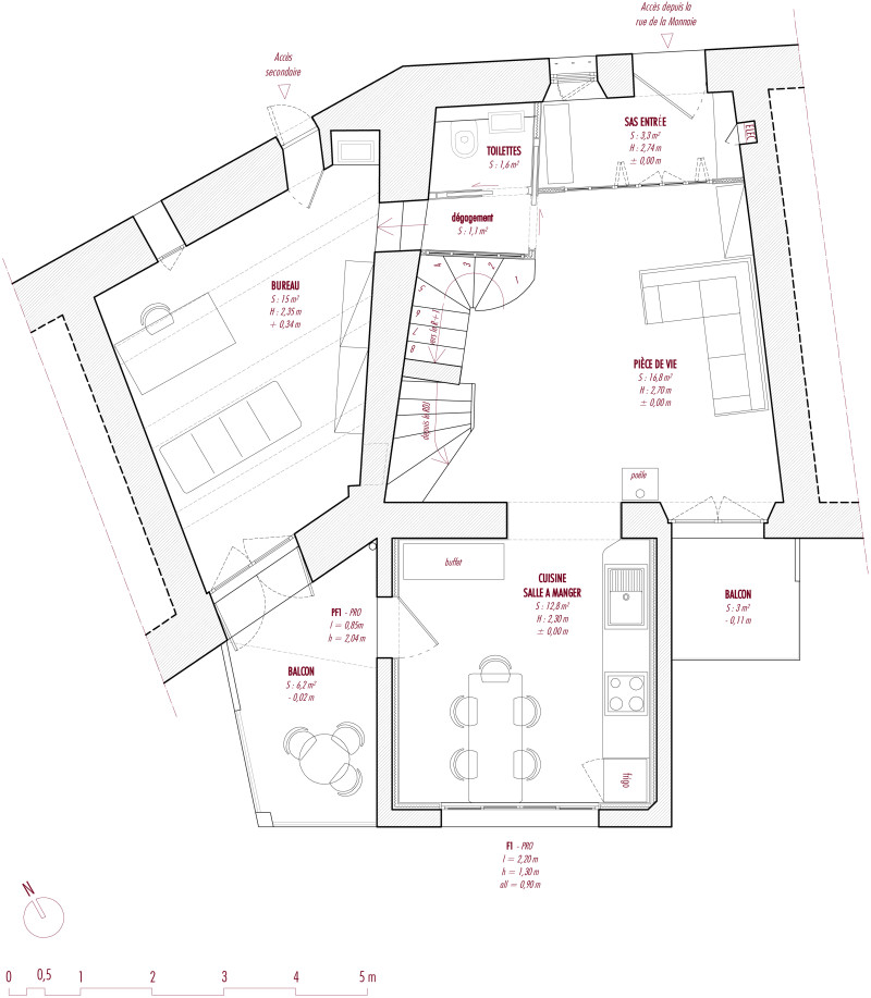
Il s'agit de l'aménagement interne complet d'une maison de village. Il a fallu consolider une partie de la structure réalisée dans les années 1980.
Les 3 niveaux de la maison ont des rapports particuliers à leur contexte et tous ont été traités de manière différente.
Le rez-de-jardin en partie enterré avec une vue limitée est plus intime, le rez-de-chaussée qui possède donc un accès depuis la voie publique a une vue sur le jardin et se retrouve à relier tous les espaces entre eux tandis que le premier étage profite d'une vue imprenable sur le paysage et les pièces à coucher se retrouvent en contact direct.
Le projet a consisté dans le positionnement de l'escalier et l'aménagement de chaque espace en s'adaptant à la structure pour résoudre tous les disfonctionnements internes.


