Rénovation interne d'une maison en pierre
Date : 2022
Lieu : Verfeuil, Gard, France
Surface : 280 m²
Budget estimé : 120k Euros HT (chantier en cours)
Mission confiée : réalisation du projet
Situation du projet : Permis de construire obtenu, chantier en cours
Collaborateur : Giuseppe Leone
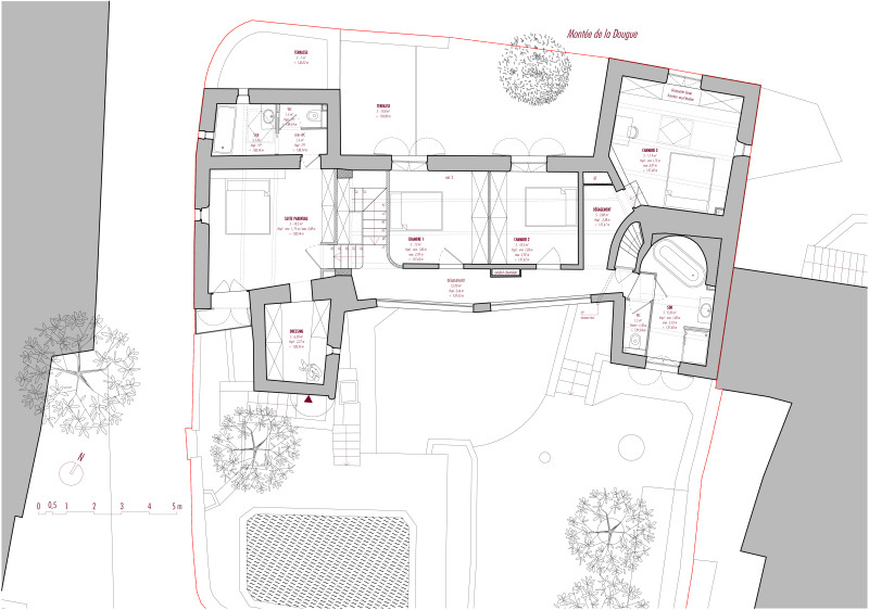
Il s'agit de l'aménagement interne complet d'une maison de village. Il a fallu repenser la distribution interne en vue d'accueillir les nouveaux occupants.
Le nouvel escalier interne relie tous les espaces et propose une solution à tous les problèmes présents indiqués par les maîtres d'ouvrage.



