Elevation by wood
Date: 2015
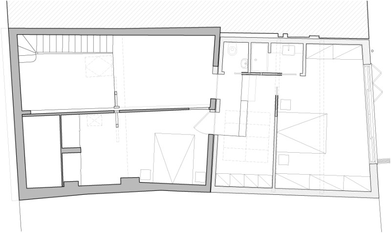
Location: Avignon, Vaucluse, France
Surface before: 78 sqm
Surface after: 122 sqm
Budget: 60k Euros HT (unrealized project)
Tasks: survey, project, building permit
Project status: Planning permission obtained, project not completed
Co-worker: Marco Terranova
The private client wished to renovate and add a bedroom and a wintergarden in his flat at the third floor of an old building in the city center of Avignon.
We decided for structurals reasons to use the wood who is lighter than concrete and also more sustainable.





